Wrocław, Psie Pole, Karłowice, Bałkańska

Mieszkanie na sprzedaż

Opis nieruchomości

TYLKO u NAS.
Polecamy mieszkanie (w odczuciu mieszkańca jak skrajny szereg) zlokalizowane na wyjątkowym osiedlu na Karłowicach (ul. Bałkańska, osiedle Różana Dolina). Osiedle dwukondygnacyjnej niskiej zabudowy typu szeregowego, ogrodzone (wjazd na pilota). Przez ogrodzenie przylega do mini Parku, 100 metrów do Odry.
Dzielnica dobrze skomunikowana z centrum (15 minut tramwajem do Rynku, liczne linie autobusowe), szybki wyjazd poprzez obwodnicę śródmiejską.  

Link do filmiku: youtu.be/7J8H92zfqbE

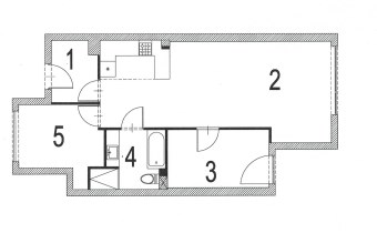
Mieszkanie 3-pokojowe z wejściem bezpośrednim z zewnątrz (jak do domu) o powierzchni: 58,1 mkw., zdecydowanie powiększonej przez powierzchnię ogrodu do wyłącznej dyspozycji (ok. 111,54 mkw., a faktycznie ok. 180 mkw.). Ogród zaaranżowany, w większości zielona trawa, ale też dwa tarasy z deski kompozytowej. Domek na narzędzia. Automatyczne zraszanie trawy. Jeżeli komuś brakuje przestrzeni w ogrodzeniu jest furtka z przejściem do mini Parku ze starodrzewiem, a jeszcze dalej bulwary nadodrzańskie.

Pokój dzienny przez duże panoramiczne okna połączony z ogrodem z jednej strony. Z drugiej przez wygodną część jadalnianą połączony z częścią kuchenną. Kuchnia z dużą zabudową, robiona przez stolarza. Dwie sypialnie. Podłoga dębowa, szczotkowana, olejowana. Dobrej klasy oświetlenie. Drzwi wewnętrzne dębowe robione na zamówienie. Łazienka z wanną, ale jest też miejsce na prysznic. W całym mieszkaniu ogrzewanie podłogowe. W oknach rolety antywłamaniowe. W podziemiu dwa miejsca postojowe z możliwością zamknięcia do samodzielnego podwójnego boksu (dodatkowo płatne). Zejście do garażu obok mieszkania.  
  
 Cena: 870.000 zł + garaż. POLECAMY
 

 

Nota prawna

Opis oferty zawarty na stronie internetowej sporządzany jest na podstawie oględzin nieruchomości oraz informacji uzyskanych od właściciela, może podlegać aktualizacji i nie stanowi oferty określonej w art. 66 i następnych K.C.

Szczegóły oferty

Symbol oferty AMS-MS-1593
Powierzchnia 58,10 m²
Powierzchnia użytkowa 58,10 m²
Liczba pokoi 3
Piętro parter
Rodzaj budynku apartamentowiec
Standard
Opłaty wg liczników prąd
Liczba pięter w budynku 2
Garaż garaż podziemny
Stan lokalu bardzo dobry
Stan prawny Własność
Mies. czynsz admin. 1 300 PLN
Okna PCV
Balkon taras
Liczba tarasów 2
Rok budowy 2013
Gaz brak
Woda tak - miejska
Dojazd asfalt
Ogrzewanie C.O. miejskie
Tarasy taras duży
Usytuowanie dwustronne
Drzwi antywłamaniowe tak
Rolety antywłamaniowe tak

Pomieszczenia

Typ kuchni z nowoczesną zabudową kuchenną
Rodzaj kuchni aneks kuchenny - połączony z salonem
Typ łazienki razem z wc
Liczba łazienek 1
Wyposażenie łazienki WC, wanna, umywalka, prysznic, pralka, lustro
Liczba przedpokoi 1

Lokalizacja

Kalkulator kredytowy

PLN
%
Wysokość raty

Kalkulator kosztów

PLN
PLN
PLN
PLN
PLN
PLN
%
PLN
Podatek od czynności cywilno-prawnych
Taksa notarialna (opłata notarialna)
VAT od taksy notarialnej (opłaty notarialnej)
Wniosek do WKW
VAT od wniosku do WKW
Prowizja agencji nieruchomości
VAT od prowizji agencji nieruchomości
Wypisy aktu notarialnego - około
RAZEM (cena + opłaty)

Napisz do nas

Proszę wypełnić to pole
Proszę wypełnić to pole
Proszę wypełnić to pole
Proszę wypełnić to pole
Trwa wysyłanie...

Ta strona wykorzystuje pliki cookies w celach statystycznych oraz w celu dostosowania naszych serwisów do indywidualnych potrzeb klientów. Zmiany ustawień dotyczących plików cookie można dokonać w dowolnej chwili modyfikując ustawienia przeglądarki. Korzystanie z tej strony bez zmian ustawień dotyczących cookies oznacza, że będą one zapisane w pamięci urządzenia.

rozumiem